Dempsey Kaserne I Paderborn

  • Stadt
  • Quartier
  • Parks / Gärten / Friedhöfe
  • Plätze / Wege
  • Infrastruktur / Gewerbe
  • Wohnen
Standort I Stadt + Landschaft 1 / 6
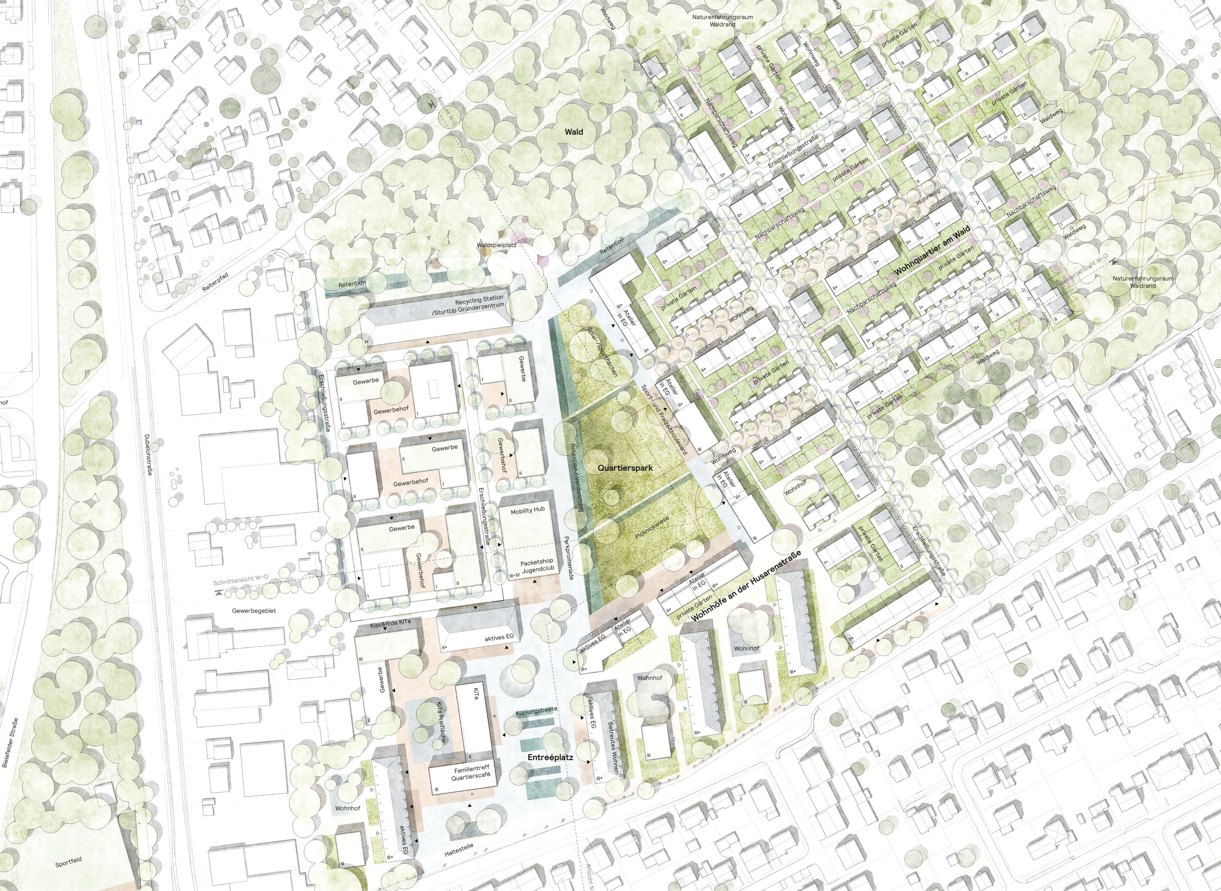
Lageplan 2 / 6
Schnitte 3 / 6
Erschließung I Freiraum I Klima+Wasser I Nutzungen 4 / 6
Modell 5 / 6
Zoom Modell I Quartierspark 6 / 6

Dempsey Kaserne I Paderborn

Hoch 8d5eb3ea96aa6d8411b83159c50d3c743e6f189fe27bbf9217b3fef0304afe85 Runter 73169ddb03ba779574d1c3fe70dbd202a2462306dd06fe08958010812f841ed9

Anliegen der Stadt Paderborn war es, das Areal der ehemaligen, durch die britischen Streitkräfte genutzten, Dempsey Kaserne städtebaulich für Wohn- und Gewerbenutzungen zu erschließen. Der Wettbewerbsbeitrag zielt auf die Integration des Areals in das bestehende Bezugssystem der Stadt. Neben der Programmierung von Wohnbau- und Gewerbeflächen, war es unser Anliegen den Standort erkennbar für das Gemeinwesen zu öffnen und die Neubauentwicklung mit einer Aufwertung des öffentlichen Raums zu verbinden. Der Wettbewerbsbeitrag differenziert das Areal in einen gewerblich geprägten Bereich und ein Wohnquartier. Als prägendes Element wird eine öffentliche Freiraumfuge herausgearbeitet, die beide Teilquartiere miteinander verbindet und die umliegenden Nachbarschaften mit dem neuen Quartier selbstverständlich in Beziehung setzt. Die Freiraumfuge bildet als Auftakt in das neue Quartier eine einladende Platzfläche aus, die in einen zentralen Quartierspark übergeht und in die angrenzende Landschaft überleitet. Proportionen und Dichte des neuen Quartiers werden aus der umliegenden Bebauung abgeleitet. Der neue Stadtraum wird durch Verzahnung mit einem angrenzenden Waldareal sowie durch Referenzierungen innerhalb der Quartiere zum Teil der bestehenden Stadtlandschaft. Freiraum und Bebauung interagieren über ein gemeinsames Regenwassermanagement, das in den privaten, gemeinschaftlichen und öffentlichen Räumen die Zukunftsthemen der wasser- und klimasensiblen Quartiersentwicklung erlebbar macht.

Leistung Wettbewerb, 2.Preis
Größe 20 ha
Auftraggeberin Stadt Paderborn
Projektpartner Octagon Architekturkollektiv, Leipzig
Bildnachweis © Octagon I bgmr