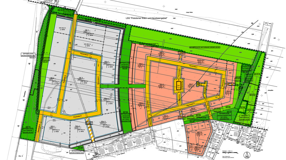
Bebauungsplan Nr. 129 "Nördlich In der Feldmark" I Potsdam OT Golm

  • Quartier
  • Landschaft / Natur
  • Infrastruktur / Gewerbe
  • Tourismus
Visualisierung 1 / 7
B-Plan Nr. 129 Potsdam Golm 2 / 7
Biotoptypen 3 / 7
Brutvogelbestand 4 / 7
Fundorte und neue Zauneidechsenhabitate 5 / 7
Eingriffsbilanz 6 / 7
Regenentwässerung 7 / 7

Bebauungsplan Nr. 129 "Nördlich In der Feldmark" I Potsdam OT Golm

Hoch 8d5eb3ea96aa6d8411b83159c50d3c743e6f189fe27bbf9217b3fef0304afe85 Runter 73169ddb03ba779574d1c3fe70dbd202a2462306dd06fe08958010812f841ed9

Der Bebauungsplan Nr. 129 wurde am 30.12.2014 rechtswirksam. Damit  besteht ein  Baurecht für die Ansiedlung naturwissenschaftlich-innovativer Segmente, die die Nähe und Synergien des Wissenschaftsparks Golm und der Universität Potsdam nutzen. Zusätzlich wurden Allgemeine Wohngebiete festgesetzt.

Um das Bauen im bisherigen Außenbereich zu ermöglichen, wurden vertiefende Untersuchungen zur Natur- und Umweltweltverträglichkeit durchgeführt, u. a. zum Erhalt wertgebender Biotop- und Landschaftsstrukturen sowie zur artenschutzrechtlichen Verträglichkeit (Brutvögel, Reptilien, Fledermäuse).

In einem Regenwasserkonzept wurde ein Mulden-Rigolensystem mit gestalterisch in öffentlichen Grünflächen integrierten semizentralen Versickerungsflächen entwickelt. Hierdurch kann das gesamte Niederschlagswasser im Plangebiet des B-Plans Nr. 129 zurückgehalten werden.

In zwei Planungswerkstätten mit Golmer Bürgern wurden die Planungen und Ergebnisse der landschaftsplanerischen Untersuchungen vorgestellt und erörtert.

Leistung Umweltbericht, Artenschutzrechtlicher Fachbeitrag, Regenwasserkonzept, Planungswerkstätten, 3D-Visualisierung, Freiraumkonzept
Größe 28 ha
Auftraggeber Landeshauptstadt Potsdam
Projektpartner Gruppe Planwerk GmbH, Berlin; Dipl.-Ing. Heinrich Harton, Büro UmLand; Dr. Hanna Köstler; Müller-Kalchreuth Planungsgesellschaft mbH
Bildnachweis 01: @Gruppe Planwerk GmbH, 2-7: @bgmr.de; Kartengrundlage 2: Potsdam FB Kataster und Vermessung 2011; Grundlage 3: Digitales Orthophoto @ Landesvermessung und Geobasisinformation Brandenburg