Buch Am Sandhaus I Berlin

  • Quartier
  • Landschaft / Natur
  • Wohnen
Perspektive des neuen Landschaftsraums mit Blick auf das Stadtquartier Am Sandhaus 1 / 3
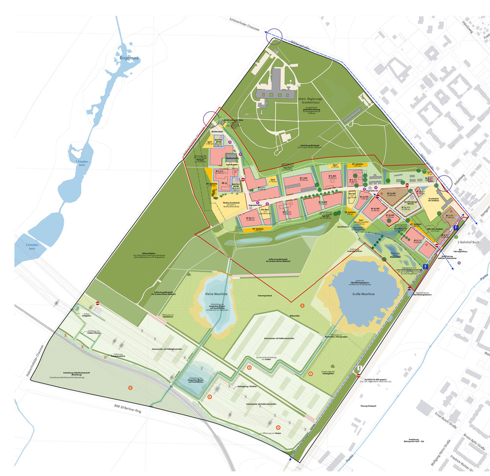
Landschaftsraum und Stadtquartier 2 / 3
Rahmenplan 3 / 3

Buch Am Sandhaus I Berlin

Hoch 8d5eb3ea96aa6d8411b83159c50d3c743e6f189fe27bbf9217b3fef0304afe85 Runter 73169ddb03ba779574d1c3fe70dbd202a2462306dd06fe08958010812f841ed9

Auf einer Gesamtfläche von rund 57 Hektar soll am nördlichen Stadtrand von Berlin ein lebendiges, städtebaulich attraktives und sozial durchmischtes Quartier entwickelt werden, das Raum bietet für rund 2.400 bis 3.000 neue Wohnungen, ergänzt durch Kindertagesstätten und eine neue Grundschule. Gemeinsam mit dem umgebenden Landschaftsraum ist eine Entwicklung von ca. 190 ha angedacht. Die Grundlagen, das Leitbild und die Ziele für das Gutachterverfahren wurden vom Planungsteam Stadt Land Fluss und bgmr vorbereitet und das mehrstufige Verfahren begleitet. Außerdem wurden die Anforderungen an die Freiraumentwicklung, an den Umgang mit dem Naturraum sowie Regenwasserbewirtschaftung und Hitzevorsorge erarbeitet.

Ziel des Landschaftskonzepts ist es, im ‚Huckepack' der städtebaulichen Entwicklung die Aufwertung der bisher intensiv landwirtschaftlich genutzten Landschaft umzusetzen. Der Landschaftswasserhaushalt soll gestärkt, die Biodiversität gesteigert, Wald vermehrt und die ausgeräumte Offenlandschaft strukturreicher werden. Die Weite soll dabei gesichert werden, um Zielarten der Offenlandschaft wie der Feldlerche Raum zu geben. Gleichzeitig soll das Landschaftserleben für Anwohner*innen und Besucher*innen erhöht werden. Die Planung wurde in einen intensiven Bürgerbeteiligungsprozess eingebunden.

Leistung Grundlagenermittlung, Entwicklungsziele und Leitbild, Betreuung städtebaulich-freiraumplanerisches Gutachterverfahren, Rahmenplan und Landschaftskonzept  
Größe 57 ha / 190 ha  
Auftraggeberin Senatsverwaltung für Stadtentwicklung, Bauen und Wohnen  
Projektpartner:in Stadt Land Fluss Städtebau und Stadtplanung; L.I.S.T. GmbH  
Bildnachweis © bgmr / Leon Giseke (1); Landschaftskonzept bgmr mit Montage des städtebaulichen Entwurfs von Studio Wessendorf / Grieger Harzer Landschaftsarchitekten (2)  

 

[mehr Informationen]