Animal-Aided Design Schumacher Quartier I Berlin

  • Quartier
  • Parks / Gärten / Friedhöfe
  • Plätze / Wege
  • Landschaft / Natur
  • Wohnen
Animal-Aided Design Schumacher Quartier 1 / 12
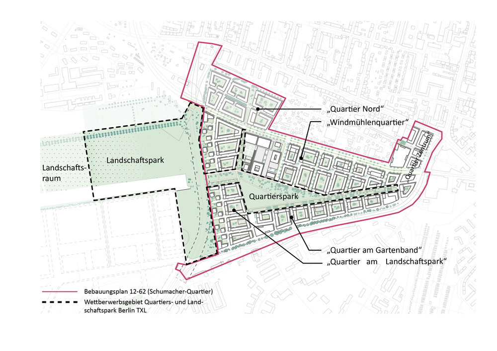
zukünftiges Umfeld 2 / 12
Projektgebiet 3 / 12
Zielartenauswahl 4 / 12
14 Zielarten und ausgewählte Eigenschaften 5 / 12
Maßnahmenkomplex Fassade 6 / 12
Maßnahmenkomplex Hof im Blockrand 7 / 12
Maßnahmenkomplex Dächer und Hochpunkte 8 / 12
Fassadenhabitate als Reliefskulptur an "Mobility Hubs" 9 / 12
Maßnahmenkomplex Bildungscampus - Umweltbildung mit Webcam ins Stubenquartier und Bat-Detektoren 10 / 12
Maßnahmenkomplex Quartierspark 11 / 12
"Sträucher-Clump" Element, damit die Nachtigall im Landschaftspark brütet 12 / 12

Animal-Aided Design Schumacher Quartier I Berlin

Hoch 8d5eb3ea96aa6d8411b83159c50d3c743e6f189fe27bbf9217b3fef0304afe85 Runter 73169ddb03ba779574d1c3fe70dbd202a2462306dd06fe08958010812f841ed9

Angesichts des anhaltenden Städtewachstums ist ein aktives Einbinden von biodiversitätsfördernden Maßnahmen in städtische Planungsprozesse von entscheidender Bedeutung, um städtische Natur und ihre Ökosystemleistungen in der Stadt zu erhalten. Mit dem Bau von ca. 5.000 Wohneinheiten für 10.000 Menschen im Schumacher Quartier soll erstmals in Berlin auch konkret neuer Lebensraum für ausgewählte Zielarten geschaffen und die Lebensbedingungen für weitere profitierende Arten verbessert werden. Mit dem Animal-Aided Design Konzept werden die Tierbedürfnisse in die Stadt- und Freiraumplanung eingebunden. So lassen sich nicht nur wertvolle Nischen für Vögel, Reptilien, Insekten oder Säugetiere schaffen – auch die Lebensqualität der Städter steigt. Mit dem Projekt wurden 14 Zielarten ausgewählt, die aus Naturschutzgründen gefördert werden sollen, aber auch besondere und positive Erlebnisse für die Nutzer*innen der Freiräume und die Bewohner*innen des neuen Stadtquartiers mit sich bringen. Ein Maßnahmenkatalog benennt die für die Förderung der Tiere notwendigen Elemente, wie z.B. blau-grüne Biodiversitätsdächer und artspezifische Fassadenquartiere.

 

Leistung Konzept
Größe 85 ha
Auftraggeber:in Land Berlin vertreten durch Tegel Projekt GmbH
Projektpartner Studio Animal-Aided Design
Bildnachweis Bgmr und Studio AAD; basierend auf Rahmenplan Schumacher Quartier Stand 2018 von scheuvens + wachten; Fotos via flickr: Dohle: hedera.baltica [CC BY-SA 2.0], Haubenlerche: vil.sandi [CC BY-ND 2.0]; Haussperling: hedera.baltica [CC BY 2.0]; Mauersegler: pau.artigas [CC BY-SA 2.0]; Nachtigall: Ron Knight, [CC BY 2.0]; Star: Stefan Berndtsson [CC BY 2.0]; Turmfalke: Smudge 9000 [CC BY-SA 2.0]; Schwalbenschwanz: Jörg Hempel [CC BY-SA 2.0]; Kleiner Sonnenröschen-Bläuling: Ettore Balocchi [CC BY 2.0];  Ligusterschwärmer: Ben Sale [CC BY 2.0]; Nachtigall-Grashüpfer San Martin [CC BY-SA 2.0)]; Fotos via wiki commons: Breitflügelfledermaus: Mnolf  [GFDL, CC-BY-SA-2.0], Wechselkröte: Konstakal [CC BY-SA 4.0]; Rotbeinige Körbchen-Sandbiene: gailhampshire [CC BY 2.0]; Eichhörnchen: Lindschulte